Valkenburgerweg 25 Heerlen

Bieden vanaf € 275.000,- k.k.

omschrijving


ROYALE HOEKWONING MET VEEL POTENTIE 

Bent u op zoek naar een woning met karakter én veel ruimte om uw eigen woonwensen te realiseren? Dan is deze royale hoekwoning aan de Valkenburgerweg 25 in Heerlen een unieke kans. Met een woonoppervlak van maar liefst 223 m², 7 slaapkamers en een fijne stadstuin, biedt deze woning volop mogelijkheden voor wie bereid is de handen uit de mouwen te steken.

Ruimte, potentie én karakter – de perfecte basis voor uw droomhuis
Dit herenhuis uit 1928 ademt sfeer en historie. Het betreft een echte kluswoning, volledig te renoveren naar eigen smaak en stijl. De basis is robuust: een solide constructie, ruime vertrekken en een indeling die zowel modernisering als herindeling toelaat. 

Binnen treft u een zee van ruimte, verdeeld over meerdere verdiepingen. De begane grond leent zich uitstekend voor een royale leefkeuken, een ruime woonkamer en zelfs een thuiskantoor of praktijkruimte aan huis. Op de verdiepingen bevinden zich maar liefst 7 slaapkamers – ideaal voor grotere gezinnen, samenwonende generaties of het combineren van wonen en werken.

De tuin is gelegen op het zuidwesten en biedt voldoende ruimte en mogelijkheden voor een fijne buitenruimte.

Wonen in een karaktervolle wijk
De woning is gelegen op wandelafstand van het gezellige centrum van Heerlen. Voorzieningen als scholen, supermarkten, openbaar vervoer en uitvalswegen bevinden zich op korte afstand.

Grijp deze kans en plan een bezichtiging
Ziet u de potentie van deze karaktervolle woning? Neem dan contact met ons op voor een bezichtiging en laat u verrassen door de ruimte en mogelijkheden. Hier begint uw volgende woonhoofdstuk!

INDELING:

Begane grond:
- entree met fraaie mozaïek vloer
- woonkamer met en-suite schuifdeuren naar de eetkamer
- eetkamer met openslaande deuren naar de tuin
- toilet
- keukenruimte met aansluitend bijkeuken-ruimte met tuindeur
- bergruimte, momenteel nog enkel bereikbaar via de tuin

Eerste etage: 
- overloop
- 4 slaapkamers (resp. ca. 19m², 18m², 11m² en 7 m²) waarvan een met Frans balkon

Tweede etage:
- overloop
- 3 slaapkamers (resp. ca. 15m², 15m² en 12m²)
- badkamer, voorzien van ligbad, wastafel en toilet
- bergkast

Zolder:
- middels vast trap bereikbare zolder (ca. 20m²) met CV-installatie

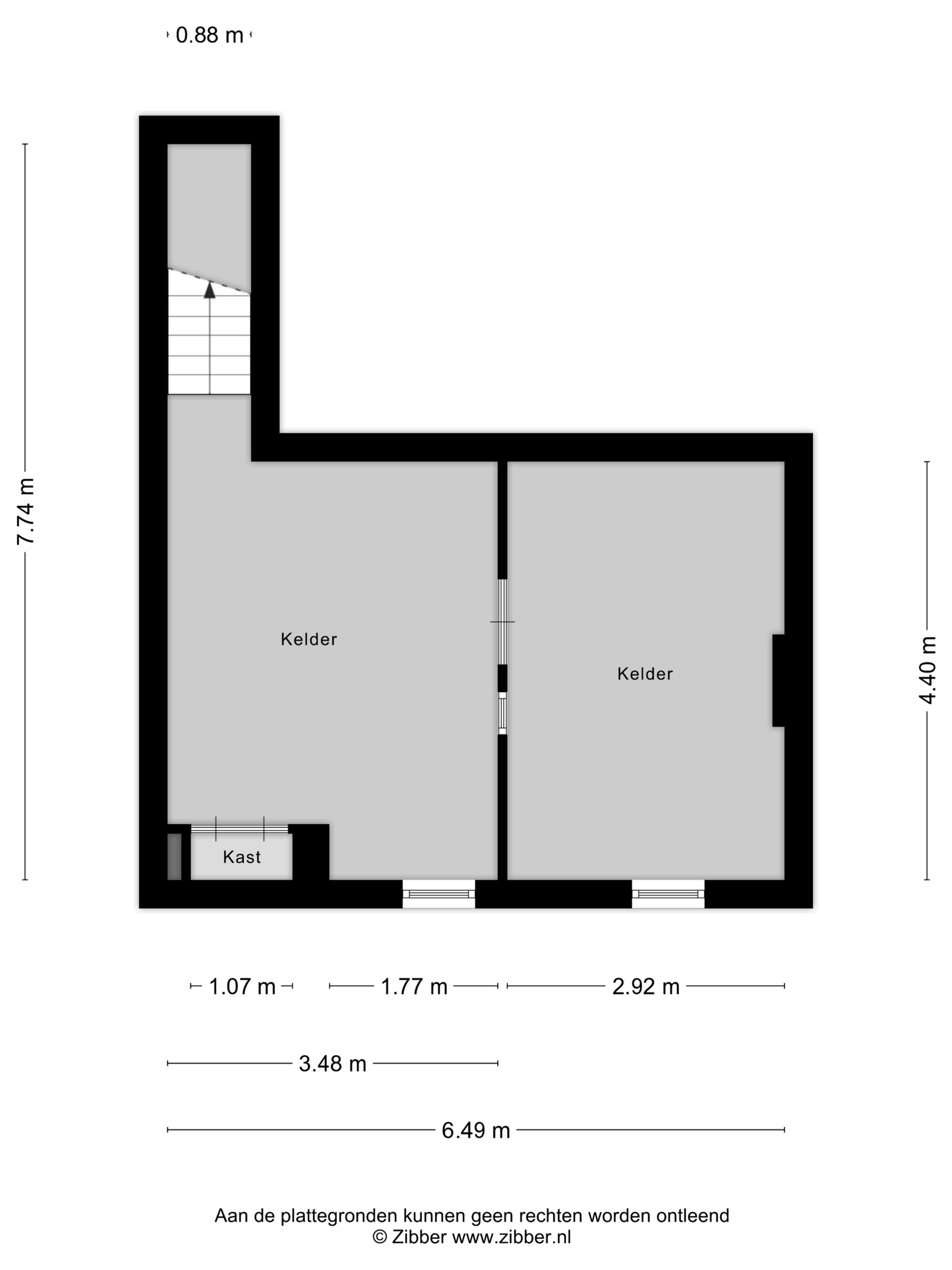
Souterrain:
- 2 kelderruimtes (resp. ca.15m² en 13m²)

Tuin:
- achtertuin op zuidwesten (ca. 40m²)

BIJZONDERHEDEN:

Bouwjaar: 1928

Gebruiksoppervlakte wonen: 223m²

Gebruiksoppervlakte overige inpandige bergruimte: ca. 60m²

Gebouwgebonden buitenruimte: ca. 1m²

Perceeloppervlakte:  157m² 

Energielabel G

Staat van onderhoud: te renoveren

Aanvaarding: per direct/in overleg

 

De gegevens en (eventuele) plattegronden in deze documentatie zijn zo correct mogelijk weergegeven, opdat u zich kunt oriënteren omtrent deze woning. De informatie is met zorg samengesteld en uit ons inziens betrouwbare bron afkomstig. Ten aanzien van de juistheid ervan kunnen wij echter geen aansprakelijkheid aanvaarden. Oppervlakten en maten zijn indicatief.

📞 Interesse? Neem contact met ons op voor meer informatie of een bezichtiging!

 

kenmerken & documenten


algemeen

Soort object Hoek-/eindwoning
Woonoppervlakte 223 m²
Perceeloppervlakte 157 m²
Energielabel G
Aanvaarding Per direct/in overleg

PLATTEGRONDEN

Begane grond
Afbeelding – 353,1 KB
Eerste etage
Afbeelding – 402,2 KB
Tweede etage
Afbeelding – 441,6 KB
Zolder
Afbeelding – 1,8 MB
Kelder Jpg
Afbeelding – 275,7 KB

KADASTER

Kadastrale Kaart
PDF – 372,3 KB

Troost biedt je de ruimte