Stategaard 59 Maastricht

Vraagprijs vanaf € 360.000,- k.k.

omschrijving


Rustig gelegen aan een kindvriendelijk woonerf in de prettige wijk Eyldergaard-Heer is deze goed onderhouden, ruime halfvrijstaande woning met drie slaapkamers, hobby-/werkkamer, tuin en garage met oprit. 

INDELING

Begane grond:
Entree, meterkast en hal met toegang tot resp. de woonkamer, het gastentoilet, de trapkast en de garage.
Het gastentoilet is recentelijk vernieuwd en is voorzien van een hangcloset met inbouwreservoir en een fonteintje. 
De ruime en lichte doorzonwoonkamer (ca. 24 m²) biedt uitzicht op de achtertuin. Dankzij de praktische indeling is er voldoende ruimte voor zowel een gezellige zithoek als een eethoek.
De open keuken bevindt zich aan de zijde van de achtertuin en is functioneel ingericht, met volop mogelijkheden om deze naar eigen smaak te moderniseren. Ook is er hier een buitendeur naar de achtertuin. 

Eerste etage:

Op de eerste etage bevinden zich drie ruime slaapkamers (resp. ca. 11, 13 en 9 m²) waarvan twee voorzien van laminaatvloeren. Verzorgde badkamer met ligbad/douchecombinatie, wastafel, 2e toilet en wasmachine-aansluiting.

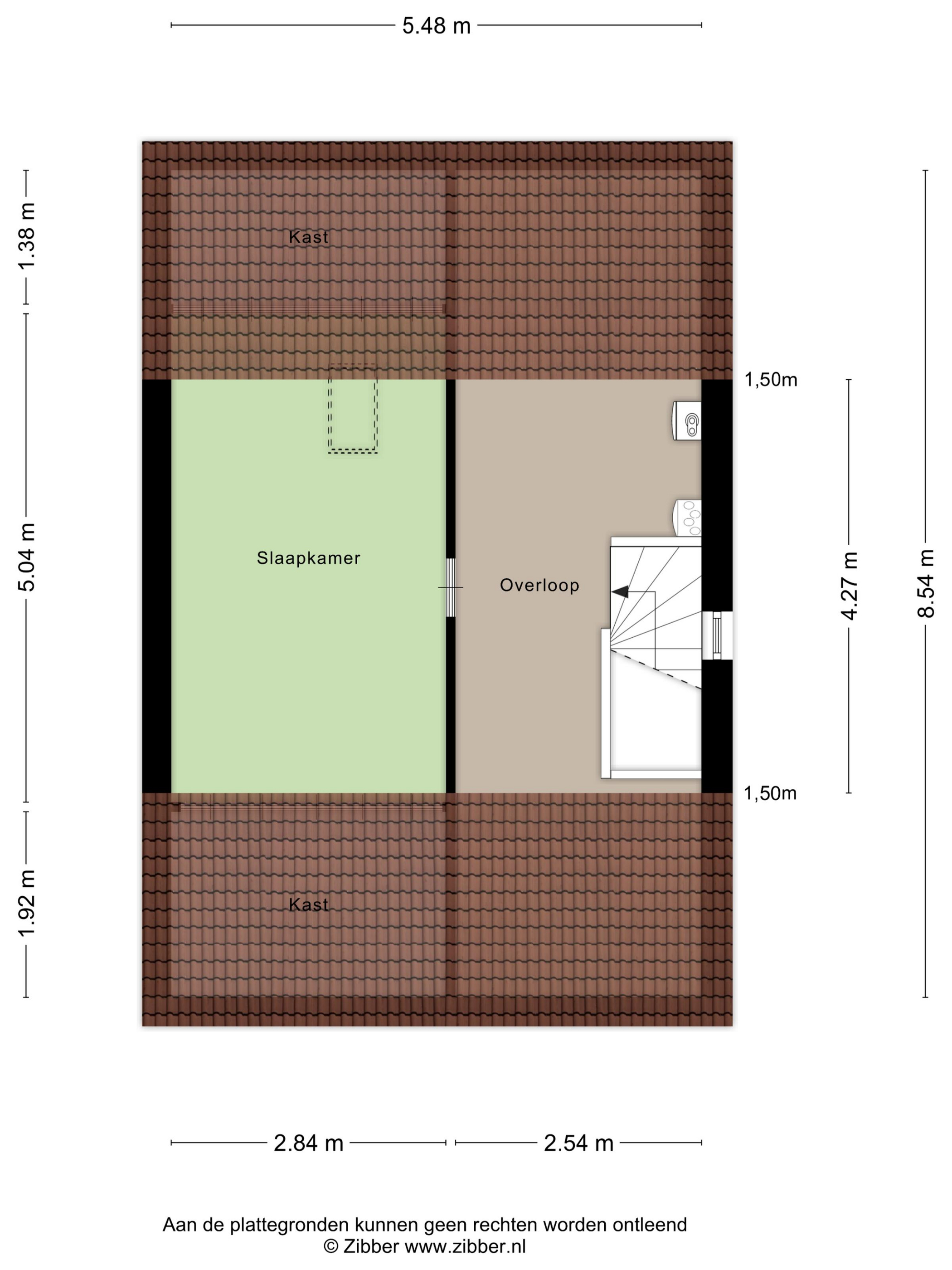
Tweede etage:

Vaste trap naar de tweede etage. Deze etage is keurig afgewerkt en biedt ruimte aan de CV-combiketel en het mechanisch aangedreven ventilatiesysteem van de woning. Ook bevindt zich hier een zolderkamer (12 m²) die geschikt is als werk- of hobbyruimte met volop bergruimte dankzij de muurkasten. Mogelijkheid tot gebruik als slaapkamer na aanpassingen.

Garage en buitenberging:

Aangebouwde en inpandig bereikbare garage (17 m²) – ideaal voor het parkeren van uw voertuig, maar ook zeer geschikt als hobby-, werk- of opslagruimte, mede dankzij het vlieringgedeelte. De garage heeft tevens een deur naar de achtertuin. Achter de garage is de buitenberging (ca. 4,5 m²); ideaal voor fietsen of containers.

Oprit en tuin:

Bij aankomst valt direct de ruime oprit op, die toegang biedt tot de aangebouwde garage. De voortuin is onderhoudsvriendelijk en kan eventueel nog deels gebruikt worden als extra parkeerplek. 

De achtertuin met achterom is gelegen op het zuidwesten, biedt volop privacy en zon en is een heerlijke plek om te ontspannen of om kinderen veilig te laten spelen. Perfect voor tuinliefhebbers of zomerse avonden buiten! 

Wonen in een rustige, kindvriendelijke omgeving

Eyldergaard-Heer staat bekend als een rustige en kindvriendelijke wijk, met diverse voorzieningen en scholen in de nabije omgeving. Daarbij bevindt de woning zich op korte fietsafstand van het bruisende centrum van Maastricht. Ook de uitvalswegen richting Heerlen, Aken en Eindhoven zijn uitstekend bereikbaar, evenals het MUMC+ en diverse winkelvoorzieningen. Station Maastricht Randwyck ligt op 1 km afstand van de woning.

Voor gezinnen én thuiswerkers

Met zijn praktische indeling, garage, tuin en prima ligging is deze woning zeer geschikt voor gezinnen, maar ook ideaal voor wie werken aan huis wil combineren met comfortabel wonen.

 

 

De gegevens en (eventuele) plattegronden in deze documentatie zijn zo correct mogelijk weergegeven, opdat u zich kunt oriënteren omtrent deze woning. De informatie is met zorg samengesteld en uit ons inziens betrouwbare bron afkomstig. Ten aanzien van de juistheid ervan kunnen wij echter geen aansprakelijkheid aanvaarden. Oppervlakten en maten zijn indicatief.

📞 Interesse? Neem contact met ons op voor meer informatie of een bezichtiging!

 

kenmerken & documenten


algemeen

Soort object Halfvrijstaande woning, hoekwoning
Bouwjaar 1981
Gebruiksoppervlakte wonen 122 m²
Gebruiksoppervlakte overige inpandige ruimte 20,3 m²
Gebouw gebonden buitenruimte 4,4 m²
Perceeloppervlakte 236 m²
Energielabel C
CV Combiketel (2015, eigendom)
Kozijnen Hout, geschilderd in 2023
Isolerende beglazing Geheel m.u.v. raam tweede etage
Aanvaarding Per direct/in overleg

PLATTEGRONDEN

Begane Grond
Eerste etage
Tweede etage

KADASTER

Kadastrale Kaart

Troost biedt je de ruimte