Kempkensweg 13 Puth

€ 520.000,- k.k.

omschrijving


Rustig, in landelijk groen en ideaal gelegen op nog geen 15 minuten loopafstand van het centrum van het karakteristieke dorp Puth is deze verrassend ruime, vrijstaande semi-bungalow. De woning biedt o.a. 4 slaapkamers en een royaal souterrain plus inpandige garage. Wat dit huis echt bijzonder maakt, is de eigentijdse achtertuin op het zuidoosten. Met een verfrissend zwembad, moderne vijverpartij en een overdekt terras dat uitnodigt tot ontspanning en gezelligheid. Hier is het genieten van lange zomeravonden met optimale privacy, een waardevolle luxe die dit huis onderscheidt van anderen.

Aan energiezuinigheid is uiteraard ook gedacht: 14 zonnepanelen, isolatie voorzieningen en een WTW-installatie hebben zeker bijgedragen aan het energielabel B. 

Deze woning is gelegen in een wijk met een uniek karakter - een landelijke, groene en rustige omgeving met adembenemende vergezichten over uitgestrekte landerijen. Het huis vormt daarbij een perfecte match met de  behoeften van gezinnen. De buurt straalt veiligheid uit, ideaal voor kinderen om te spelen en te groeien. De ruime indeling en de nabijheid van scholen en voorzieningen maken dit huis de ideale plek om samen herinneringen te creëren en te koesteren.

Puth ligt midden in een groene omgeving op het Plateau van Doenrade. Het populaire Pelgrims- en Pieterpad doorkruisen Puth en in de nabijheid van het dorp onthullen de heuvels prachtige panorama's, en kan men genieten van wandelingen door schilderachtige holle wegen. Comfortabel wonen, werken en recreëren gaan hier beslist goed samen: bedrijvigheid in de regio Sittard-Geleen, Parkstad of Maastricht; dit alles is prima bereikbaar vanuit deze thuisbasis.

Bereikbaarheid via het openbaar vervoer is eveneens prima met de bushalte op nog geen 5 minuten loopafstand.  Parkeren kan in de garage, op de eigen oprit en er is ruim voldoende, gratis parkeergelegenheid voor de deur in deze autoluwe straat. Zo is deze locatie ideaal voor wie werk wil combineren met een fijn thuis! 

 

INDELING:

Souterrain:

De woning is geheel onderkelderd en biedt zodoende bijzonder veel bergruimte! Het gehele souterrain is verwarmd en beschikt over een praktische tegelvloer.

De overloop biedt toegang tot resp. de garage, de berging, de bijkeuken en een toilet.

Ook via de oprit aan de voorzijde van het pand is de garage (ca. 33,5 m²) te bereiken. Deze garage beschikt over een elektrisch bedienbare sectionaalpoort en verwarming; ook bevindt zich hier de WTW-installatie. 

Een grote plus is de berging van maar liefst ca. 27,5 m². Deze doet nu uitstekend dienst als opbergruimte, maar gebruik als werk- of hobbyruimte is hier natuurlijk ook prima mogelijk. 

De bijkeuken (ca. 8,5 m²) is voorzien van een keukenblok en beschikt over aansluitingen ten behoeve van wasmachine en droger en heeft daarnaast nog voldoende ruimte voor een koelkast en diepvries. 

Begane grond:

Entree, hal, meterkast, gastentoilet en toegang tot resp. souterrain en etage.

De ruime en lichte woonkamer (ca. 38 m²) biedt aan de voorzijde een prachtig uitzicht over de landerijen en aan de achterzijde, middels een brede, glazen schuifpui, rechtstreekse toegang tot het terras en de tuin. De ramen zijn voorzien van elektrisch bedienbare zonwering en de airconditioning kan de ruimte zowel koelen als verwarmen. Plaatsing van een (gas)haard is mogelijk. 

De keuken (ca. 7 m²) is hoogwaardig afgewerkt met een granieten werkblad en is o.a. voorzien van een inductie kookplaat met wasemkap, koelkast, vaatwasser en combi-magnetron (apparatuur o.a. Bosch en Siemens). Ook de keuken biedt rechtstreekse toegang tot de achtertuin.

Slaapkamer (ca. 13 m²), gelegen aan de zijde van de achtertuin en voorzien van een Artcool Gallery Airco-Set.

Aan slaapkamer grenzende badkamer, voorzien van een gloednieuw bubbelbad, wastafel, toilet en designradiator.

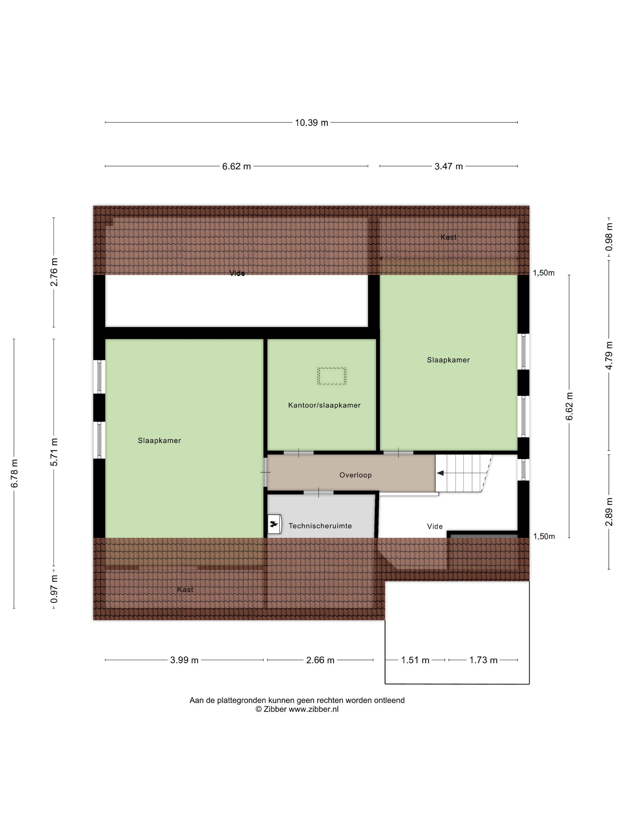
Eerste verdieping:

Gang met toegang tot drie slaapkamers (resp. ca. 21,2 m², ca. 15,5 m² en ca. 7,3 m²). De grootste twee slaapkamers hebben een hoge nok, zijn voorzien van tapijt, airconditioning (met mogelijkheid tot zowel koelen als verwarmen) en beschikken over volop bergruimte dankzij de diepe muurkasten onder de schuine kant van het dak. De overige slaapkamer is momenteel in gebruik als kantoor en beschikt over een laminaatvloer. 

Technische ruimte met o.a. de CV/warmwaterinstallatie (eigendom) en installatie ten behoeve van de 14 zonnepanelen.  

Tuin:

De achtertuin vormt een ware bron van luxe en ontspanning! Deze zorgvuldig, eigentijds vormgegeven buitenruimte, gelegen op het zuidoosten, belichaamt het perfecte samenspel tussen comfort en stijl. De achtertuin onderscheidt zich door haar optimale privacy, een waardevol kenmerk dat het mogelijk maakt om in alle rust te genieten van de verschillende facetten van deze buitenruimte. 

De achtertuin is bereikbaar vanuit de woning en biedt daarnaast toegang via een van de zijtuinen, wat het geheel een open indeling geeft. Of je nu vanuit de woonkamer rechtstreeks de tuin in loopt of de route door de zijtuin neemt; deze buitenruimte is altijd binnen handbereik.

Met een verfrissend zwembad (5x3x1,5 m), een plek om te koesteren en verkoeling te vinden op warme dagen. Praktisch gemak biedt de ruime tuinberging met installaties ten behoeve van het zwembad, waardoor onderhoud eenvoudig en efficiënt wordt.

Naast mogelijkheid te genieten van zon en zwembad, biedt deze tuin een overdekt terras (ca. 19,7 m²) met granieten vloer en zicht op een strakke vijverpartij. Vloerspots en tuinverlichting zorgen voor een sfeervolle ambiance, waardoor dit terras de ideale plek wordt voor gezellige avonden.

 

BIJZONDERHEDEN:

Bouwjaar: 1995

Rustig en landelijk gelegen nabij het centrum van Puth

Oppervlakte perceel: 480 m²

Gebruiksoppervlakte wonen: ca. 180,9 m²

Gebruiksoppervlakte overige inpandige ruimte: ca. 37,50 m²

Gebouwgebonden buitenruimte: ca. 29,10 m²

Externe bergruimte: ca. 6,70 m²

Bruto inhoud woning: 810,05 m³

Energielabel B

Vloerverwarming: begane grond, woon- en badkamer tevens v.v. designradiatoren

Verwarming ruimtes etage: radiatoren

Airconditioning: 3 slaapkamers en woonkamer, met mogelijkheid tot zowel koelen als verwarmen

CV-installatie: HR-combiketel, eigendom. Wordt vervangen in 2024.

WTW-installatie (WHR 950/960 Basic), eigendom

14 Zonnepanelen, geplaatst april 2023, huur (€ 108,- per maand). Huurovk over te nemen.

Kozijnen: grotendeels kunststof met dubbel glas

Begane grond voorzien van elektrisch bedienbare zonwering (voorzijde en t.p.v. overdekt terras)

Groepenkast en elektriciteitsvoorzieningen vernieuwd (2020)

Bubbelbad vernieuwd in 2023

Aanvaarding in overleg

 

De gegevens en plattegronden in deze documentatie zijn zo correct mogelijk weergegeven, opdat u zich kunt oriënteren omtrent deze woning. De informatie is met zorg samengesteld en uit ons inziens betrouwbare bron afkomstig. Ten aanzien van de juistheid ervan kunnen wij echter geen aansprakelijkheid aanvaarden. Oppervlakten en maten zijn indicatief.

Interesse of een vrijblijvende bezichtiging? Neem dan contact op met ons kantoor. 

 

kenmerken & documenten


algemeen

Soort object Vrijstaande semi-bungalow
Perceeloppervlakte 480 m²
Energielabel B
Aanvaarding In overleg

PLATTEGRONDEN

Souterrain
Afbeelding – 321,0 KB
Begane Grond
Afbeelding – 589,3 KB
Eerste Verdieping
Afbeelding – 1,1 MB
Tuin
Afbeelding – 1,3 MB
Tuinberging
Afbeelding – 334,4 KB
Kadastrale kaart
PDF – 232,6 KB

Troost biedt je de ruimte