De Tichel 64 Heerlen

Vraagprijs € 177.500,- k.k.

omschrijving


Instapklaar hoekappartement met balkon op het zuiden en uitzicht op het groen

Dit instapklare hoekappartement aan De Tichel 64, in de geliefde wijk Caumerveld / Douve Weien, combineert comfort, een rustige ligging én een gunstige prijs. Met een woonoppervlak van 62 m², twee slaapkamers, een balkon op het zuiden, een berging, een privé-parkeerterrein voor bewoners en diverse voorzieningen dichtbij, is dit appartement een mooie kans voor starters of singles die op zoek zijn naar een instapklaar plekje met alles binnen handbereik.

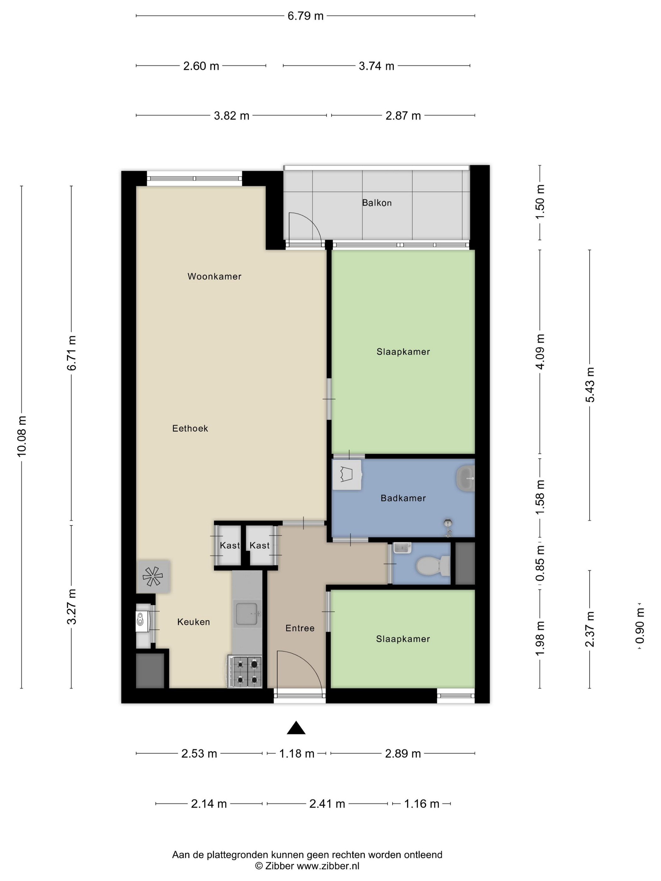
Indeling:

Begane grond:

Hoofdingang met bellentableau, brievenbussen en toegang tot zowel het trappenhuis als de lift. Verder beschikt de woning hier over een eigen berging (7 m²) - perfect voor opslag! - en is er een gezamenlijke, afgesloten, inpandige fietsenstalling zodat uw fiets altijd droog en veilig is.

Derde etage:

Het appartement bevindt zich op de derde etage en heeft een hoekligging. Hierdoor ervaart u extra rust, veel lichtinval en het gevoel van halfvrijstaand wonen.
Entree en hal/gang met diepe garderobekast.
(Gasten-)toilet.
De lichte woonkamer, met uitzicht op het groen, biedt toegang tot het (deels) aangesloten balkon.

Het balkon is gunstig gelegen op het zuiden, ideaal om na een lange dag heerlijk buiten te ontspannen.
De (semi-)open keuken is recentelijk vernieuwd en beschikt over een gasfornuis met oven, afzuigkap en veel kastruimte. In een van die muurkasten bevindt zich de CV-installatie.
Slaapkamer 1 (ca. 12 m²) met grote raampartij en eigen toegang tot de badkamer. 
Badkamer, v.v. wastafel, douche, radiator en wasmachineaansluiting. De badkamer is zowel via slaapkamer 1 als via de hal/gang te bereiken. Dit biedt de mogelijkheid om de deur in de slaapkamer niet te gebruiken en in plaats hiervan extra opbergruimte in de slaapkamer te creëren.

Slaapkamer 2 (ca. 6 m²). Deze ruimte kan ook prima dienst doen als studeerkamer of walk-in closet.

Comfortabel en duurzaam wonen

In 2021 is het complex voorzien van onderhoudsvrije kunststof kozijnen met HR++-glas, dat uiteraard bijdraagt aan de energiezuinigheid. Ook zijn de gevels aan de galerijzijde gerenoveerd waardoor het gebouw representatief en verzorgd oogt.

Buitenruimte en parkeren

Het complex straalt ruimte en rust uit; de gebouwen liggen in verzorgde groenvoorzieningen. Voor de auto is er altijd plaats: bewoners en bezoekers kunnen ruimschoots vrij parkeren op het parkeerterrein van het complex.

Centrale ligging met uitstekende bereikbaarheid

De ligging van dit appartement maakt het extra aantrekkelijk. Scholen, winkels en het Zuyderland Medisch Centrum liggen op korte afstand en dankzij de prima aansluiting op de uitvalswegen bent u binnen korte tijd in Maastricht, Aken of Eindhoven. Een ideale combinatie van rustig wonen en optimale bereikbaarheid!

Aanvaarding
Vanaf 1 april 2026

De gegevens en (eventuele) plattegronden in deze documentatie zijn zo correct mogelijk weergegeven, opdat u zich kunt oriënteren omtrent deze woning. De informatie is met zorg samengesteld en uit ons inziens betrouwbare bron afkomstig. Ten aanzien van de juistheid ervan kunnen wij echter geen aansprakelijkheid aanvaarden. Oppervlakten en maten zijn indicatief.

📞 Interesse? Neem contact met ons op voor meer informatie of een bezichtiging!

 

kenmerken & documenten


algemeen

Soort object Hoek-appartement
Bouwjaar 1975
Gebruiksoppervlakte wonen 62 m²
Externe bergruimte 7 m²
Energielabel B
CV Nefit Proline NXT HRC24/CW4 (ca. 2015, eigendom)
Glasvezel Ja
VVE bijdrage € 252,72 (incl. bijdrage woning, berging en kozijnen)
Aanvaarding Vanaf 1 april 2026/in overleg

PLATTEGRONDEN

Appartement

Berging

KADASTER

Kadastrale kaart


Troost biedt je de ruimte