Clavecymbelstraat 27 B Maastricht

Vraagprijs € 199.000,- k.k.

omschrijving


***OPEN HUIS 28 MAART VAN 13.00 TOT 15.00 UUR ***

Ben je op zoek naar een ruim appartement dat je verder naar eigen smaak kunt afwerken? Dan is dit ruime 3-kamer appartement van ca. 84 m² in Maastricht een uitgelezen kans!

Deze maisonnette, 84 m² verdeeld over de eerste en tweede etage van een kleinschalig appartementencomplex in de geliefde wijk Caberg, biedt twee ruime slaapkamers, een privé-berging en de mogelijkheid te parkeren op het afgesloten parkeerterrein van het complex. Met de ligging pal tegenover het winkelcentrum en diverse voorzieningen heel dichtbij, is deze woning een mooie kans voor starters of singles die op zoek zijn naar een plekje met alles binnen handbereik.

De woning verkeert in redelijke staat van onderhoud en biedt daarmee dé kans om deze geheel naar eigen smaak af te werken. Wie bereid is de handen uit de mouwen te steken, creëert hier eenvoudig een eigentijdse woning op een gewilde locatie. 

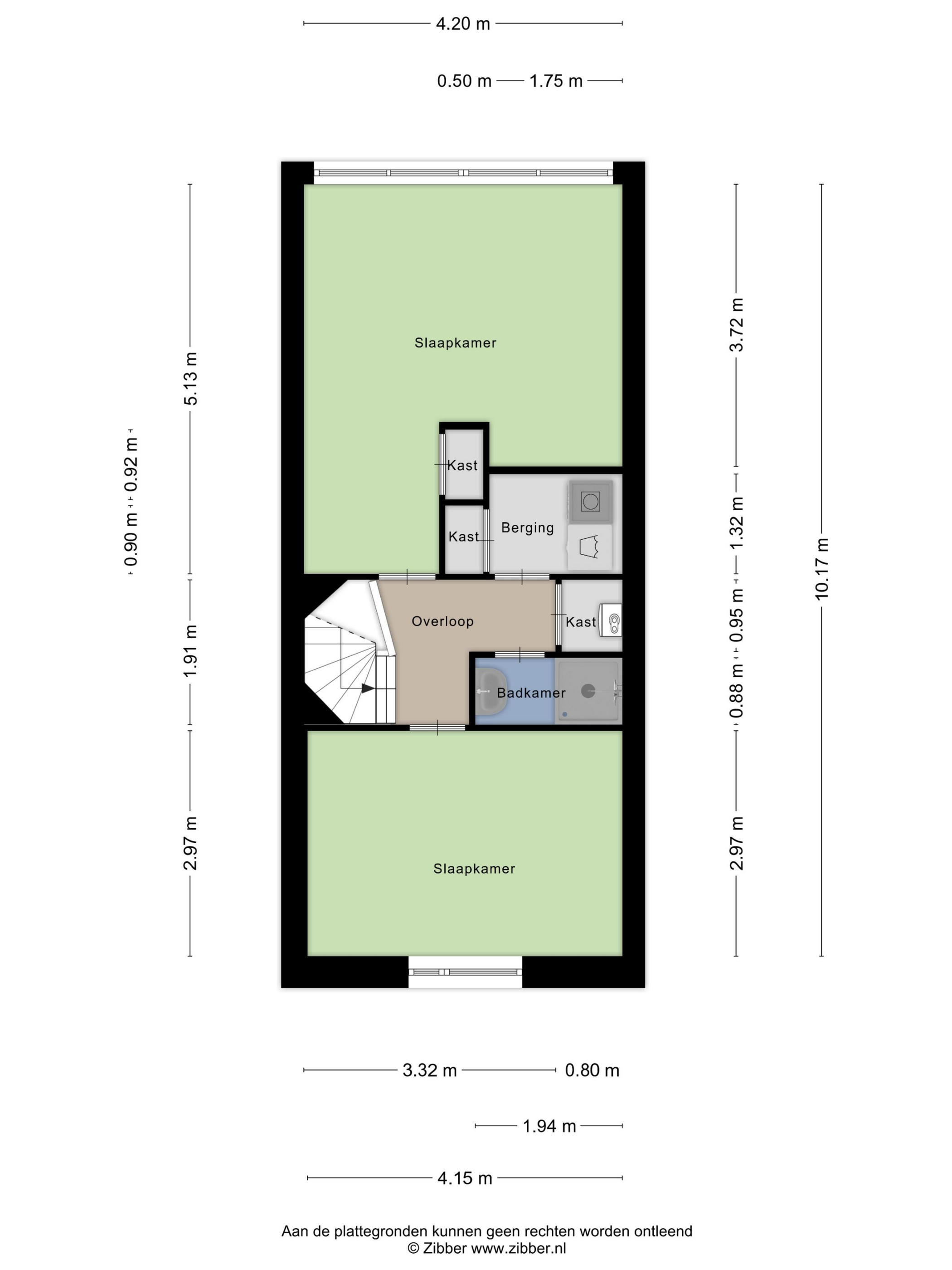
Indeling

Begane grond:

Centrale entree en hal met toegang tot het trappenhuis en het achter het complex gelegen, afgesloten privé-parkeerterrein.
De bij de woning behorende berging (6,3 m²) bevindt zich eveneens op de begane grond en is buitenom bereikbaar; ideaal als opslag of voor het binnen stallen van een fiets.

Eerste etage:

Entree en hal met meterkast, ruime trapkast en gastentoilet. 
De keuken is eenvoudig maar biedt daardoor volop mogelijkheden voor een moderne upgrade.

De woonkamer (ca. 22 m²) is licht en ruim en heeft voldoende plaats voor zowel een comfortabele zithoek als een eethoek. 

Tweede etage:

Op de tweede etage bevinden zich twee ruime slaapkamers (resp. 19 en 12 m²).
De badkamer is praktisch opgezet en kan verder naar wens worden gemoderniseerd.
Functionele en praktische bergkast met wasmachine-aansluiting; alles bij de hand maar netjes uit het zicht.

Buitenzijde:
Naast de voordeur van de woning is ruimte voor een klein zitje. Ideaal om even buiten te zitten met een kop koffie of om aan het eind van de dag nog van de buitenlucht te genieten.
Bij het appartementencomplex hoort een afgesloten privé parkeerterrein, exclusief voor bewoners; een absolute meerwaarde.
Het complex is aangemerkt als gemeentelijk monument, wat bijdraagt aan de uitstraling en het authentieke karakter van het geheel.

Locatie & bereikbaarheid

Caberg is een geliefde en levendige wijk in Maastricht waar comfort, bereikbaarheid en voorzieningen perfect samenkomen. Hier woont u in een prettige woonomgeving met alles wat u dagelijks nodig heeft letterlijk om de hoek. Het winkelcentrum tegenover de woning vormt het hart van de wijk en biedt een compleet aanbod aan supermarkten, winkels en andere voorzieningen. Ook scholen en overige faciliteiten bevinden zich op korte afstand, wat Caberg bijzonder aantrekkelijk maakt voor zowel starters als gezinnen.

De bereikbaarheid is uitstekend. Het bruisende centrum van Maastricht bereikt u binnen circa 10 minuten fietsen en dankzij de gunstige ligging bent u snel onderweg richting Heerlen, Eindhoven en Aken.

 

De gegevens en (eventuele) plattegronden in deze documentatie zijn zo correct mogelijk weergegeven, opdat u zich kunt oriënteren omtrent deze woning. De informatie is met zorg samengesteld en uit ons inziens betrouwbare bron afkomstig. Ten aanzien van de juistheid ervan kunnen wij echter geen aansprakelijkheid aanvaarden. Oppervlakten en maten zijn indicatief.

📞 Interesse? Neem contact met ons op voor meer informatie of een bezichtiging!

kenmerken & documenten


algemeen

Woningtype Maisonnette
Bouwjaar complex 1958
Etage 1 en 2
Lift Niet aanwezig
Aantal slaapkamers 2
Ligging Tegenover winkelgebied
Gebruiksoppervlakte wonen 83,6 m²
Gebouw gebonden buitenruimte 2 m²
Externe bergruimte (berging souterrain) 6,3 m²
Bruto inhoud woning 276,18 m³
Onderhoud binnen/buiten Binnen: redelijk, buiten: goed
Maandelijkse bijdrage VvE appartement € 192,51
Energielabel E
CV en warmwater installatie HR - combiketel (2011 - eigendom. Laatste onderhoud november 2025
Mechanische ventilatie Aanwezig
Schilderwerk buitenkozijnen 2024
Erfpacht Nee
Aanvaarding Per direct / In overleg

PLATTEGRONDEN

Eerste etage
Tweede etage
Berging

KADASTER

Kadastrale Kaart

Troost biedt je de ruimte