Wilhelminasingel 113 Maastricht

Huurprijs € 3.775,- per maand excl.

omschrijving


Dit fraaie kantoorpand met monumentale allure is prima gelegen aan de chique Wilhelminasingel in Wyck, aan de rand van het historische centrum van Maastricht. De directe omgeving wordt gekenmerkt door de aanwezigheid van kantoren (o.a. notariaat, advocatuur en zakelijke dienstverlening) en woningen in karakteristieke herenhuizen binnen het beschermd stadsgezicht van Maastricht. Een uitstekende locatie voor wie zoekt naar een elegante en representatieve huisvesting voor zijn kantoor of praktijk.

*** DIT PAND IS ENKEL ALS GEHEEL TE HUUR ***
Beschikbare oppervlakte – totaal 355 m² VVO

De beschikbare ruimte is verdeeld over vier bouwlagen:

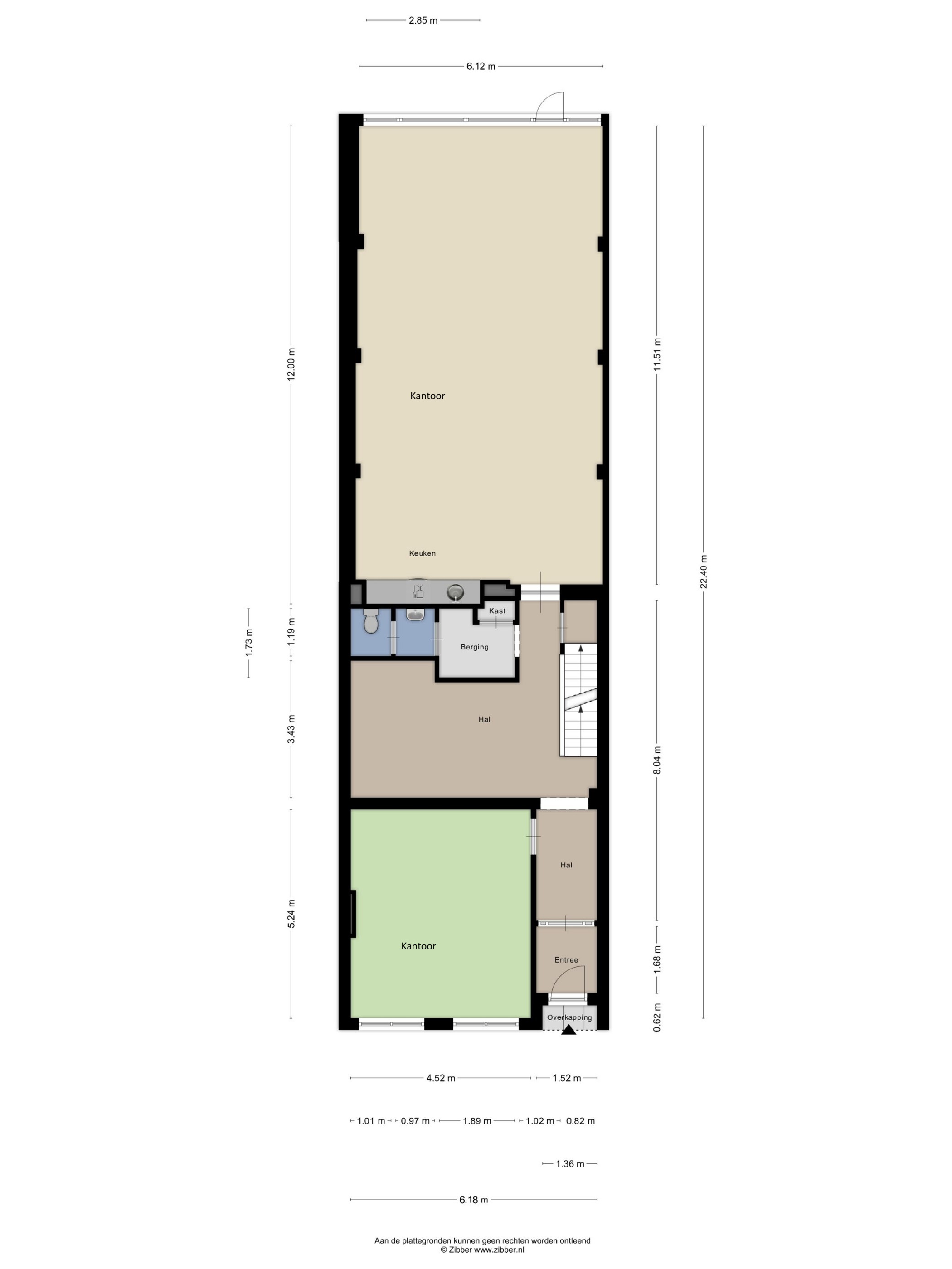
Begane grond: 137 m²
1e etage: 88 m²
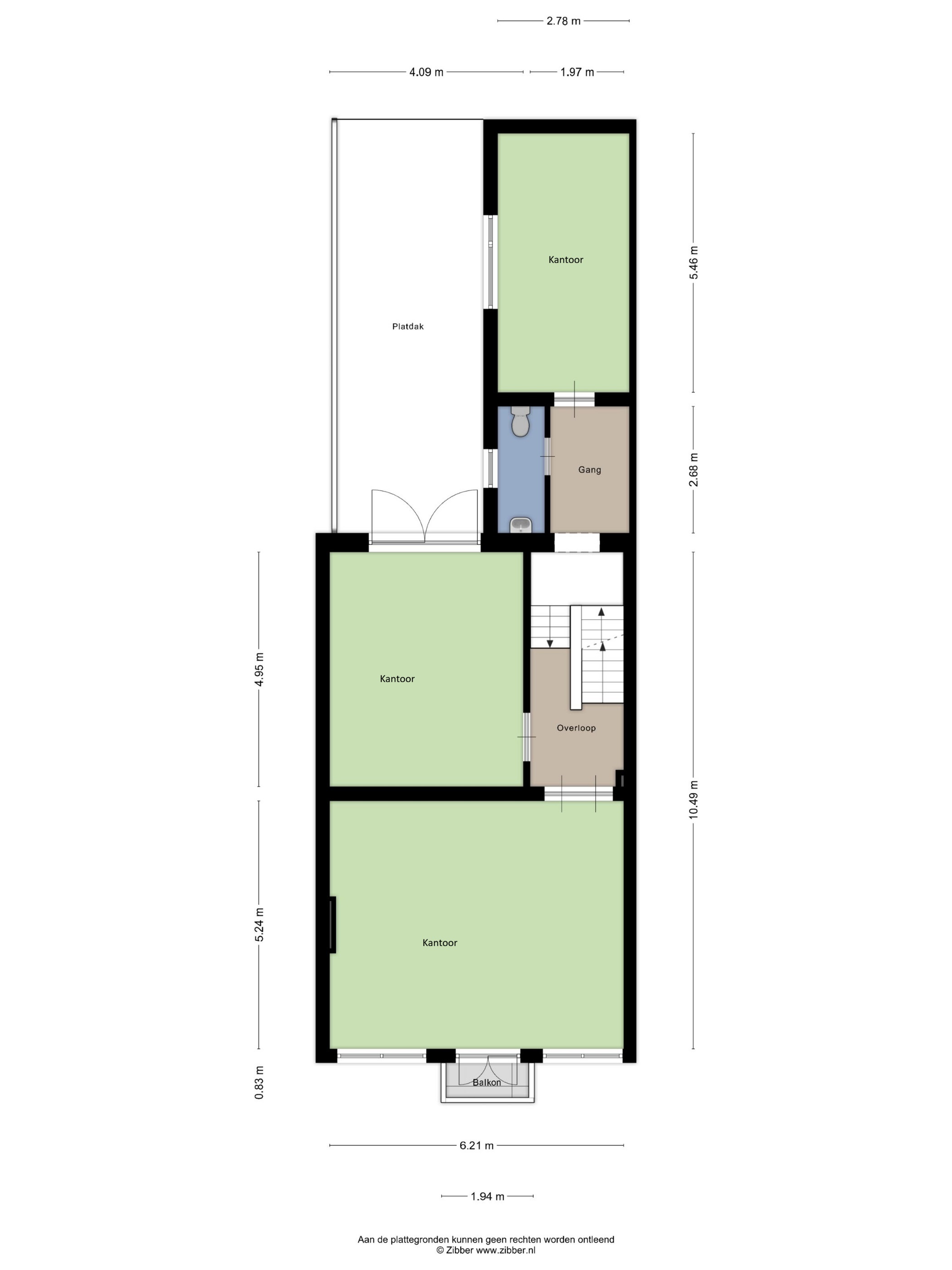
2e verdieping: 65 m²
3e verdieping: 65 m²

Daarnaast beschikt het pand over een bergzolder en diverse opslagruimtes in het souterrain.

Indeling:

Begane grond:
Representatieve entree, gang en trappenhuis, spreekkamer (24 m²), ontvangstruimte met garderobe en (gasten-)toilet, royale kantoor-/praktijkruimte (ca. 70 m²) met veel lichtinval en toegang tot de achtertuin, open keuken/pantry

1e etage:
Drie kantoorruimtes (ca. 33 m², 20 m² en 15 m²) en toilet

2e etage:
Twee kantoorruimtes (ca. 33 m² en 20 m²)

3e etage:
Twee kantoorruimtes (ca. 36 m² en 19 m²) en toilet

Voorzieningen:

  • Nieuwe inverter airconditioning in alle kantoorruimtes

  • Glasvezelaansluiting

Bestemming:

Bestemmingsplan: Centrum, Gemengd-2, waaronder kantoor- en praktijkdoeleinden. Aspirant-huurders dienen het beoogde gebruik zelfstandig te toetsen aan het vigerende bestemmingsplan.

Parkeren:
Huur van een extra parkeerplaats is mogelijk. Dit betreft een parkeerplaats in de afgesloten, privé parkeervoorziening van Residentie Centosei, aan de overzijde van het pand. Wel dient hiervoor een separate huurovereenkomst gesloten te worden.

Voor het pand is ruim voldoende, openbare parkeergelegenheid (betaald of vergunning); daarbij is een aantal parkeergarages (Q-Park Colonel en Griend) op loopafstand.

Bereikbaarheid:
Het pand bevindt zich op loopstand van het NS- en busstation, en op wandelafstand van de historische binnenstad van Maastricht. Bereikbaarheid per auto is optimaal. 

BEZICHTIGING

Enkel mogelijk op afspraak via ons kantoor. 

Deze informatie is door ons met zorg samengesteld, echter hieraan kunnen geen rechten worden ontleend. Ten aanzien van de juistheid ervan aanvaarden wij geen aansprakelijkheid.

huurcondities


Huurtermijn In overleg
Huurbetaling Per maand vooruit
BTW Verhuurder opteert voor een met btw-belaste verhuur
Huurovereenkomst ROZ-model
Huurindexatie Jaarlijks
Zekerheidsstelling Waarborgsom of doorlopende bankgarantie
Voorschot op servicekosten € 185,- per maand
Aanvaarding Per direct/in overleg
Oplevering In huidige staat

PLATTEGRONDEN

Begane Grond
Eerste Etage
Tweede Etage
Derde Etage
Zolder
Souterrain

Troost, uw makelaar in Maastricht